Giữa tiết trời tháng 10 đầy năng lượng, King House hân hoan thông báo dự án Mai’s House – Phú Mỹ đang trong giai đoạn chuẩn bị khởi công.
Phối Cảnh 3d Kiến Trúc Nhà Phố Phú Mỹ
Đây là một trong những công trình nhà phố hiện đại được King House thiết kế với tâm huyết và tinh thần sáng tạo, hướng tới không gian sống hài hòa, tiện nghi và mang đậm dấu ấn cá nhân của gia chủ.

Mai’s House sở hữu mặt tiền hiện đại, nổi bật với những đường cong mềm mại, gam màu trung tính kết hợp cùng ánh sáng vàng ấm áp. Thiết kế được tối ưu để đón gió và ánh sáng tự nhiên, mang đến không gian sống thoáng sáng, gần gũi nhưng vẫn tinh tế.
.jpg)
Từng chi tiết trong bản thiết kế đều được King House chăm chút kỹ lưỡng, nhằm tạo nên một ngôi nhà vừa thẩm mỹ, vừa phù hợp phong cách sống hiện đại của gia chủ.
.jpg)
Với King House, mỗi công trình là một hành trình chia sẻ niềm tin và giá trị sống. Đội ngũ kiến trúc sư và kỹ sư luôn tận tâm trong từng giai đoạn, từ ý tưởng thiết kế, lựa chọn vật liệu cho đến thi công – tất cả nhằm đảm bảo chất lượng và sự an tâm cho khách hàng.
.jpg)
Mai’s House là minh chứng cho triết lý làm nghề ấy – nơi kiến trúc không chỉ là hình khối, mà là cảm xúc và câu chuyện của mỗi gia đình.
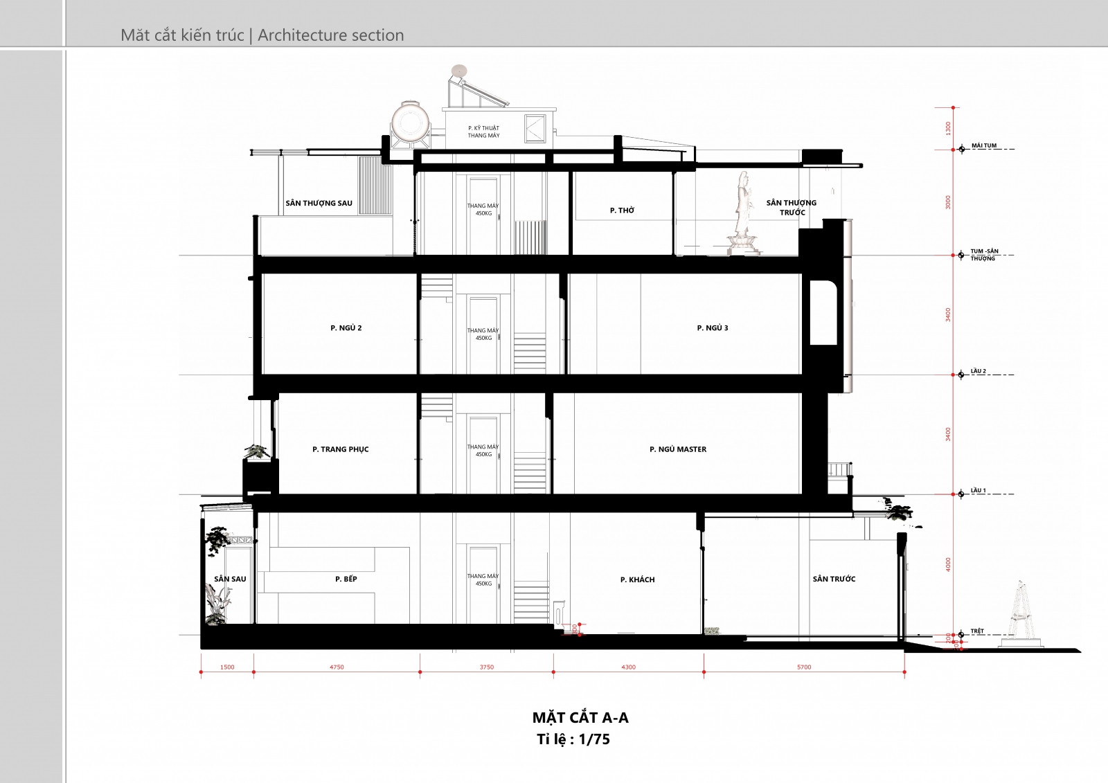
Mặt Bằng Bố Trí Công Năng
.jpg)
.jpg)
.jpg)
King House đang hoàn thiện những bước chuẩn bị cuối cùng để sẵn sàng khởi công công trình Mai’s House – Phú Mỹ. Chúng tôi tin rằng, khi từng viên gạch được đặt xuống, đó cũng là lúc một tổ ấm bắt đầu hình thành – vững chắc, ấm áp và tràn đầy yêu thương.
Khám phá Concept MAI’S HOUSE – Không Gian Sống được “DỆT” Từ Ánh Sáng & Cảm Xúc
MAI’S HOUSE – Phú Mỹ được KING HOUSE kiến tạo như một không gian dành cho những ai trân trọng sự tinh tế. Từng vật liệu, từng lớp ánh sáng, từng đường nét đều được lựa chọn không chỉ để đẹp, mà để kể câu chuyện về phong cách sống đẳng cấp.








.jpg)



.jpg)
.jpg)
.jpg)
.jpg)

.jpg)
.jpg)
.jpg)
.jpg)
.jpg)
.jpg)

.jpg)
.jpg)
.jpg)
.jpg)


.jpg)
.jpg)
.jpg)

.jpg)
.jpg)


.jpg)

.jpg)
.jpg)
.jpg)
.jpg)
Không gian mở khoáng đạt, hòa quyện cùng ánh sáng tự nhiên, tạo nên sự bình yên đầy sức sống. Các chi tiết được xử lý tối giản nhưng chuẩn mực, mang lại cảm giác sang trọng nhẹ nhàng – một vẻ đẹp không phô trương nhưng đủ khiến người ta dừng lại, ngắm nhìn và cảm nhận.
Cùng KING HOUSE chờ đón những hình ảnh hoàn thiện trong thời gian tới nhé!!!
